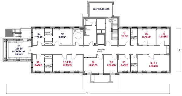
This property offers individual offices and suites available in a newly renovated historic building and full floor opportunities. Tenants can expect free onsite parking with move in ready offices or custom suites. All utilities and parking are included. Some amenities include mountain view from Downtown Charlottesville, large shared conferencing spaces and an onsite fitness center and cafe.